frFrançais21.11.2025
L'équipe de planificateurs de gdap architectes sàrl, Genève, a obtenu le 2e rang du concours «EMS Alp'Age-PSVJ» avec le projet «ELSA». Le projet mise sur une construction en bois claire et intègre de manière cohérente l'établissement médico-social dans la topographie exigeante et la zone de formation et de santé environnante.
© Images: gdap architectes sàrl, Genève
© Rendus: gdap architectes sàrl, Genève
© Visualisation: gdap architectes sàrl, Genève
Le projet «Concours EMS Alp'Age-PSVJ» comprenait la planification d'une maison de retraite médicalisée (EMS) dont l'intégration dans un environnement existant à la topographie difficile était au centre des préoccupations. L'objectif était de créer un lien harmonieux entre une maison de retraite, une école secondaire et un centre de santé. L'architecture du bâtiment est conçue de manière à s'intégrer de manière optimale dans l'environnement naturel et à permettre l'accès à l'extérieur depuis toutes les sorties d'étage.
© Images: gdap architectes sàrl, Genève
© Rendus: gdap architectes sàrl, Genève
© Visualisation: gdap architectes sàrl, Genève
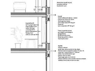
La construction de la maison de soins était prévue en bois. La façade était composée d'éléments préfabriqués en bois d'épicéa avec une isolation minérale, les fenêtres étaient en bois d'épicéa laminé avec un revêtement en aluminium anodisé. L'isolation et le vitrage répondaient à des exigences énergétiques élevées. Le toit était végétalisé de manière extensive et équipé de panneaux photovoltaïques.
L'un des principaux défis était l'intégration dans le terrain fortement incliné. Les chemins et les accès ont été planifiés de manière à ne pas dépasser une pente de 6 %. Il a en outre été question de supprimer une butte afin de créer une plus grande clairière servant d'espace de rencontre.
Le bâtiment suivait une structure en forme de trèfle, ce qui permettait une organisation claire : Au rez-de-chaussée se trouvaient des espaces communs, un foyer d'étudiants ainsi que la cuisine et la buanderie. Les étages supérieurs offraient chacun trois unités d'habitation, reliées par un noyau central avec des ascenseurs et des espaces de soins. Les espaces étaient conçus pour être individuels, sûrs et bien éclairés, et donnaient accès à un espace extérieur protégé.
Le projet mettait l'accent sur une construction écologique, des processus fonctionnels et un environnement répondant aux besoins des résidents. L'association d'une construction en bois, d'un aménagement paysager soigné et d'une approche intergénérationnelle en a fait un exemple fort de maisons de soins contemporaines.
Un grand merci à tous les participants du concours - pour l'engagement, l'échange et la forte performance commune. En jetant un regard rétrospectif sur le résultat, il reste l'espoir légitime de pouvoir bientôt convaincre ensemble lors d'un prochain projet ou d'une prochaine procédure.
| Domaine de responsabilité | Porteur |
|---|---|
| Architecture | gdap architectes sàrl, Genève |
| Statique dans la construction en bois | Timbatec ingéneiurs bois SA, Delémont |
| Ingénieur civil | Construction massive | 2M ingénierie civile sa, Yverdon-les-Bains |
| Architecture paysagère | Studio Mint sàrl, Architecte paysagiste, Carrouge |
| Visualisations | gdap architectes sàrl, Genève |
