1er prix pour la CircularTower à Burgdorf

21.11.2022

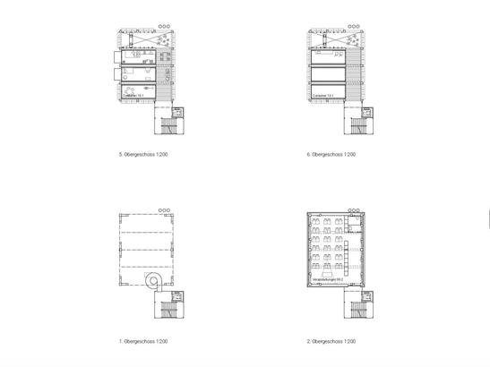
Le projet «CircularTower» permet de faire l'expérience de la construction circulaire. Le projet «Setzkasten» du bureau d'architectes biennois Inhelder Osterwalder Architekten en collaboration avec Timbatec Holzbauingenieure a été recommandé pour la réalisation.

1er prix pour la CircularTower à Burgdorf

La future «CircularTower» sera occupée par des entreprises, des institutions de formation et de recherche ainsi que des associations en collaboration avec le TecLab et servira de laboratoire réel et de source d'inspiration pour d'autres projets dans le domaine de l'économie circulaire. Outre les manifestations, des projets de recherche et de développement portant sur des matériaux, des méthodes et des produits innovants et recyclables trouveront place dans et autour du bâtiment.

Dans le cadre du concours d'idées, des possibilités de mise en œuvre de la «CircularTower» ont été générées. En récompensant le projet gagnant, le jury du concours s'est concentré sur une construction durable, l'utilisation de matériaux renouvelables et neutres pour le climat, l'utilisation d'éléments de construction recyclés et la possibilité de réutiliser les nouveaux éléments.

Le projet «Setzkasten» du bureau d'architectes biennois Inhelder Osterwalder Architekten en collaboration avec Timbatec Holzbauingenieure a été recommandé pour la réalisation. Il séduit par son expression architecturale différenciée de la construction circulaire, l'intégration intelligente du public, la mutabilité et le thème de la construction simple.

Nous félicitons Inhelder Osterwalder Architekten pour la réussite de son projet et nous réjouissons d'une collaboration passionnante. Vous trouverez de plus amples informations sur www.inhelderosterwalder.ch ou sur www.teclab.swiss

Protection des données
Ce site web utilise des composants externes qui peuvent être utilisés pour collecter des données sur votre comportement. Pour en savoir plus, consultez nos informations sur la protection des données.