«HOFWIS» nominiert für die «Die Besten 2024»

15.11.2024

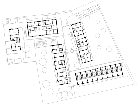
Die «Stiftung Pro Elsau» baute eine altersdurchmischte Wohnsiedlung mit Mehrfamilien- und Reihenhäusern, einem umfangreichen Mietwohnungsangebot, Tiefgaragen sowie Besucherparkplätzen. Ergänzt wird das Angebot durch ein Kulturhaus mit Bibliothek und Saal sowie durch ein Gesundheitszentrum.

«HOFWIS» nominiert für die «Die Besten 2024»

Architektur- und Designawards «Die Besten 2024» vom Hochparterre

Das Kultur- und Gesundheitszentrum HOFWIS, welches von der Stiftung Elsau erbaut wurde, ist in der Kategorie Architektur zum Publikumspreis für die «Die Besten 2024» nominiert. Es freut uns sehr, dass es diese äusserst gelungene inszenierte Holz-Architektur auf die selektierte Longlist geschafft hat. Herzliche Gratulation allen am Bau Beteiligten.

Projekt-Eckdaten

  • Wohnüberbauung HOFWIS mit Gesundheits- und Kulturzentrum, 8152 Elsau, ZH
  • https://www.hofwis.ch
  • Bauherrschaft: Stiftung Pro Elsau
  • Architektur: BDE Architekten GmbH, Winterthur

Das Projekt umfasst 2 Mehrfamilienhäuser, 9 Reiheneinfamilienhäuser, 1 Gesundheitszentrum und eine Bibliothek mit Mehrzweckraum. Mit dem Laubengang, den Steildächern sowie den Holzfassaden gelang die Eingliederung in die ländliche Umgebung hervorragend. Alle vier Neubauten sind ab Bodenplatte komplett in Holz konstruiert. Vom Mietangebot wurde rege Gebrauch gemacht. Alle Wohneinheiten sind vermietet.

Architektur | Nachhaltiges Bauen | Erneuerbare Energien

Die Architektur der HOFWIS-Siedlung integriert sich in die zentrale Dorflage, indem sie Elemente des bestehenden Bauernhauses aufgreift. Das Gesundheitszentrum interpretiert eine herrschaftliche Scheune mit gemauertem Sockel und Holzfassaden, was seine Bedeutung für die Gemeinde hervorhebt. Nachhaltig gebaut, kombinieren die Neubauten Holz mit minimalem Beton und Stahl, um Ressourcen zu schonen und langfristige Effizienz zu gewährleisten. Eine grosse Photovoltaik-Anlage deckt den Eigenbedarf, betreibt Wärmepumpen, lädt Elektroautos und speichert überschüssigen Strom. Die Gebäude erfüllen die Anforderungen des SIA Effizienzpfades Energie 2040.

Bilder ©Jusuf Supuk


Award Night im Museum für Gestaltung Zürich, 3.12.2024

Am 3. Dezember werden die Gewinner anlässlich der Award-Night im Museum für Gestaltung Zürich ausgezeichnet. 

Veranstalter

  • Hochparterre AG, Verlag für Architektur, Planung und Design - LINK 
  • Firma Müssig AG, Amriswil - LINK

#architektur #landschaftsarchitektur #design

Datenschutzhinweis
Diese Webseite nutzt externe Komponenten, welche dazu genutzt werden können, Daten über Ihr Verhalten zu sammeln. Lesen Sie dazu mehr in unseren Datenschutzinformationen.